ブログ
2017-08-25
朝日建設の注文住宅プラン事例集014
地上2階
延床面積113.44㎡(34.31坪)
【外観パース】

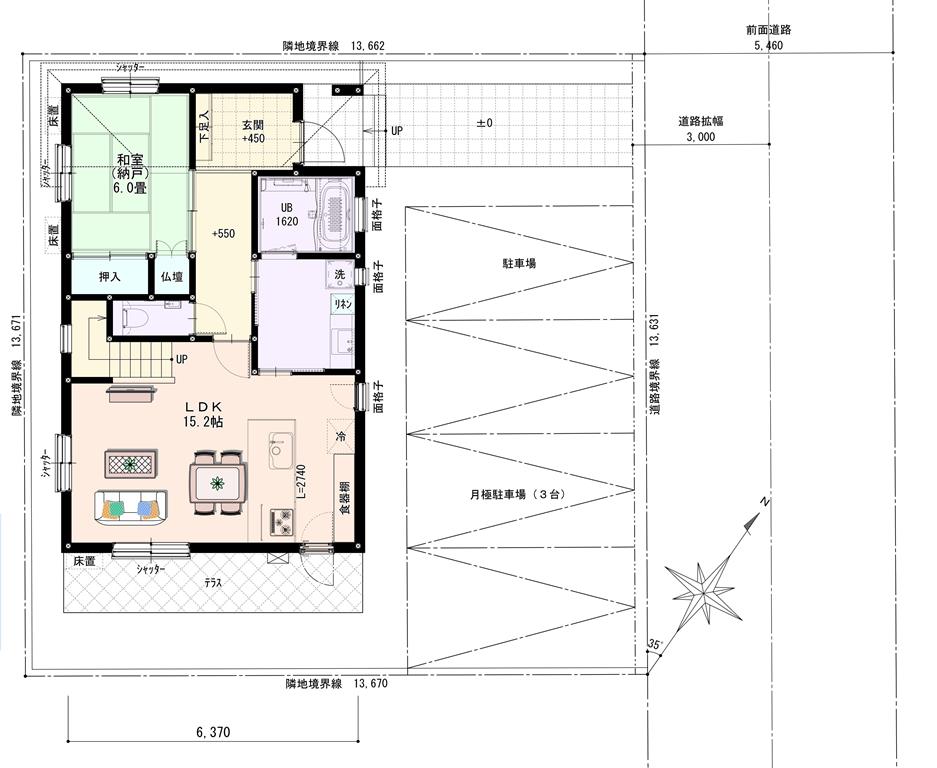
【1階】
LDKは15.2帖の広々とした空間です。
キッチンはL=2740の対面式です。
6帖の和室、外にはテラスを設けました。
【クリックで拡大表示されます】

【2階】
6.5帖の洋室が2つ、7.5帖の主寝室があり、
いずれもクローゼットが付いています。
主寝室はウォークインとなっているので
大容量の収納が可能です
【クリックで拡大表示されます】

夢を叶えるオーダーメイド住宅
注文住宅事例集013
延床面積113.44㎡(34.31坪)
【外観パース】

【1階】
LDKは15.2帖の広々とした空間です。
キッチンはL=2740の対面式です。
6帖の和室、外にはテラスを設けました。
【クリックで拡大表示されます】

【2階】
6.5帖の洋室が2つ、7.5帖の主寝室があり、
いずれもクローゼットが付いています。
主寝室はウォークインとなっているので
大容量の収納が可能です
【クリックで拡大表示されます】

夢を叶えるオーダーメイド住宅
注文住宅事例集013







