

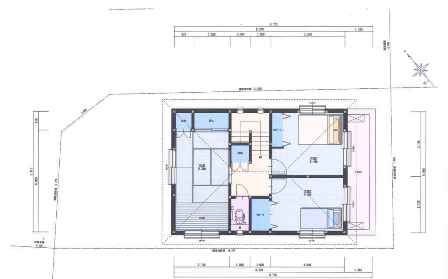
Plan-F
納戸やクロゼット、
パントリーなど収納力
に優れた
地下付き
注文住宅
パントリーなど収納力
に優れた
地下付き
注文住宅
17.3帖の大きなリビングにはアイランドキッチンを配置し、広々とした開放感あふれる空間に。地下には16.5帖と12.0帖の2室に多目的に活用できる納戸を設けました。
二世帯での生活を想定した二世帯住宅建築プラン事例はこちら
Plan-C1

地下1階・地上2階二世帯住宅の建築プラン。地下1階に玄関を設けていますが、ホームエレベーターを設置しているので、移動も楽々。
Plan-E

地下の一室は仕事部屋としても使用可能。キッチン以外の水回りを共有にし、それぞれのライフスタイルを大切にしながらも家族同士が支え合える安心の設計に。
Plan-I

玄関、LDK、水廻りを世帯ごとに配置し、なおかつ1階では二世帯が行き来できるように設計。また、地下室には20.5帖と16.8帖の納戸、階段下には収納スペースを設けました。
Plan-P

わずか13.02坪の敷地を最大限に活用し、2世帯が暮らすことのできる建築プラン。狭小ながらも収納力のある間取り。
plan-Y

木造3階建て注文住宅。1階にピアノ教室を設けるため、一部鉄筋コンクリート造(RC造)にしています。これで心配されていた音の問題も軽減されます。
Plan-D1

事務所併用の鉄筋コンクリート造・二世帯注文住宅。互いのプライバシーがそれぞれきちんと確保されています。ホームエレベーターが付いているので、各階の移動も楽々できます。
高齢な世帯でも安心のバリアフリー&階段のない平屋のプラン事例はこちら
Plan-O

玄関先にはスロープを設け、ドアは全てスライド式にすることで、移動の負担が少なく快適に生活する事のできるバリアフリーの建築プラン。
趣味や遊び、収納に活躍する地下付き建築プラン事例はこちら
Plan-D

地下に30.5帖の大空間トレーニングルームを備え、中庭やウッドデッキ、独立した和室など様々なライフスタイルに対応したゆとりある建築プラン。
Plan-E

地下の一室は仕事部屋としても使用可能。キッチン以外の水回りを共有にし、それぞれのライフスタイルを大切にしながらも家族同士が支え合える安心の設計に。
Plan-F

17.3帖の大きなリビングにはアイランドキッチンを配置し、広々とした開放感あふれる空間に。地下には16.5帖と12.0帖の2室に多目的に活用できる納戸を設けました。
Plan-I

玄関、LDK、水廻りを世帯ごとに配置し、なおかつ1階では二世帯が行き来できるように設計。また、地下室には20.5帖と16.8帖の納戸、階段下には収納スペースを設けました。
Plan-N

地下を活用し、7.7帖・12.7帖の洋室2つを設けた建築プラン。水回りは1階に設置し、リビングは14.0帖と十分に広い空間に。
Plan-Q

地下1階・地上2階の建築プラン。地階にはそれぞれ6帖と14.3帖部屋を設けており、音を気にせず趣味の映画鑑賞を楽しむことができる他、災害時にはシェルター室として活用できます。
Plan-S

わずか14.58坪の敷地ながら、敷地の高低差を活かすことでガレージスペースを確保。倉庫も付いているためメンテナンス用品の収納にも困りません。
Plan-T

1Fに14帖の広々LDKを設けました。キッチンは対面式なので、家族とコミュニケーションを取りながらのお料理もできます。6帖の主寝室が1F、2Fには洋室が3つ設けてあります。
Plan-B1

地下1階・地上3階の注文住宅。各フロアそれぞれクローゼットやウォークインなどといった収納スペースを設けています。3階にサニタリールームをまとめて設け、さらにルーフバルコニーも付いています。
屋外を贅沢に活かしたテラス・ウッドデッキ付き建築プラン事例はこちら
Plan-B

家族の団欒の場やお友達、親戚などを招待した際にもゆとりが持てる広々としたリビングとBBQも楽しめるテラス付き建築プラン。
Plan-K

1階には1帖の和室、外にはテラスを設け、15.2帖の広々としたLDKには対面式キッチンを設置。また、2階には洋室が2つと主寝室があり、いずれもクローゼットを完備しています。
Plan-L

リビングからは開放感のあるウッドデッキのバルコニーへ出ることができます。また、2階には洋室を2部屋と主寝室を設け、各部屋にクローゼットを完備しました。
ライフスタイルの変化にも対応可能な賃貸併用住宅の建築プラン事例はこちら
Plan-R

シェアハウスを想定した地上2階の建築プラン。2階には5名分のプライベートも重視した完全個室、1階にはオーナー住宅があるためシェアハウスに住む方も安心の生活環境を実現。
狭い敷地でも敷地の形状を有効活用して生活空間を広々確保した建築プラン事例はこちら
Plan-N

地下を活用し、7.7帖・12.7帖の洋室2つを設けた建築プラン。水回りは1階に設置し、リビングは14.0帖と十分に広い空間に。
Plan-S

わずか14.58坪の敷地ながら、敷地の高低差を活かすことでガレージスペースを確保。倉庫も付いているためメンテナンス用品の収納にも困りません。
スキップフロア・アイランドキッチン・床暖房など充実設備の建築プラン事例はこちら
Plan-G1

三角屋根が目を引く外観の木造注文住宅建築プラン。車を停めた際に車の後ろや横に壁がないため、乗り降りや荷物の積み下ろしがしやすいのが特徴のカーポート付き。
Plan-G

14.2帖のLDKの床には床暖房をつけ、冬でも家族みんなが温かく過ごせる空間に。主寝室には大きなウォークインクロゼットを設け、収納も十分に確保しました。
Plan-H

開放感のあるアイランドキッチンはリビングが見渡せる位置に設けることで、より広々とした空間設計に。また、LDKには隣接して3.5帖のタタミコーナーも配置しました。
Plan-J

2階の19.5帖の大きなLDKには水回りを一式配置。バルコニーへそのまま出られる動線をつくりました。 また、玄関には下駄箱の他にも多くの収納スペースを設けました。
Plan-V

15.5帖の広々としたLDKを設けました。家族がくつろげる空間です。 対面式キッチンにすることで、お料理中もコミュニケーションを取りながらできます。
Plan-W

地上3階建ての木造注文住宅。 2階は広々LDK、そして3階のそれぞれの居室にはウォークインクローゼット完備の注文住宅です。
Plan-A1

2階建ての注文住宅。くつろぎの場所、ダイニングキッチンとリビングは各フロアに配置しました。吹き抜けをつくり、開放感のある建築プランです。



















